Brenda pranverës 2023, Drejtoria e Përgjithshme e Shërbimeve të Transportit Rrugor, në dakortësi me Bashkinë Durrës, do të fillojë me rikualifikimin urban përreth, zgjidhjen e parkimeve dhe aksesit më komod për qytetarët.
Projekti adreson rëndësinë e Drejtorisë Rajonale të Shërbimeve të Transportit Rrugor në Durrës, që kreu 357,327 shërbime fizike gjatë vitit 2021, dhe që i shërben 139,679 drejtuesve të mjeteve rrugore.
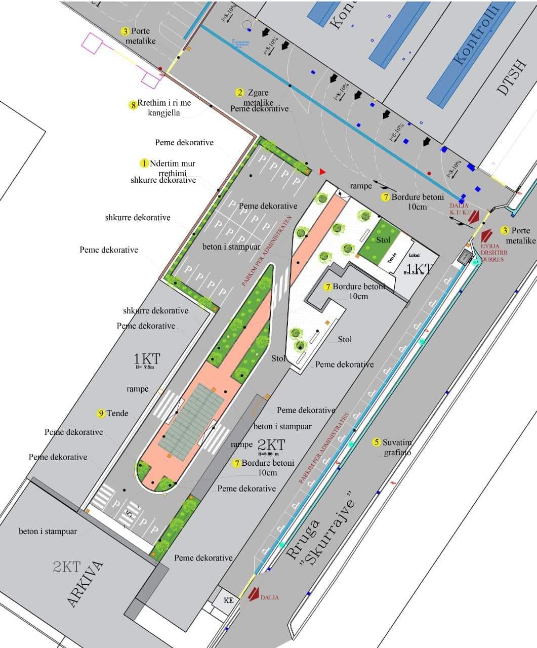
Parashikohet zgjerimi me një linjë të re testimi dhe hapësirë të jashtme për 95 vendparkime shtesë, hijëzim, ulëse, trotuare e zonë pedonale, rrugë, ndriçim e gjelbërim, në një sipërfaqe rreth 7,500 m2.
“Edhe ky investim do të financohet 100% me të ardhurat e vetëfinancimit, të cilat kanë qenë rezultat i punës së pareshtur për rimëkëmbjen financiare, falë mirëadministrimit 2019-2022 si dhe fuqizimit të automotorizimit shqiptar”, bën të ditur nëpërmjet një email-i zyrtar DPSHTRR.





